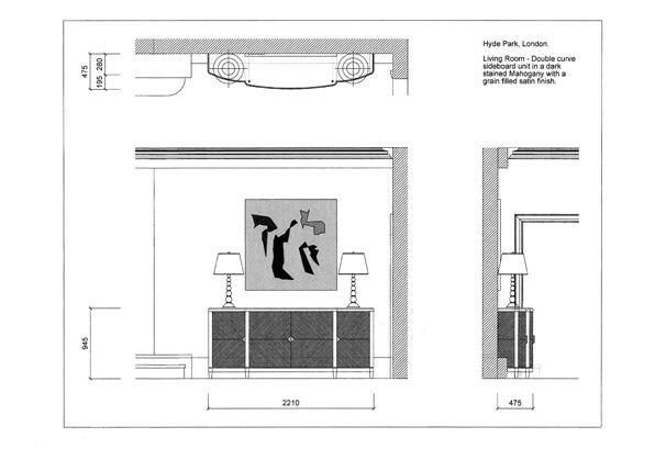
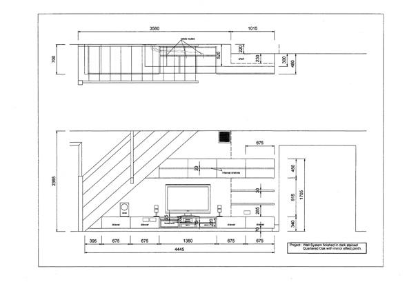
Just as every person is unique, so is their home. Whether or not you’re struggling for space, or simply cannot find the perfect piece, WMFD can design and produce bespoke furniture to your individual requirements. Combining a wide breadth of knowledge with highly skilled contacts, we can also provide spatial planning and interior design solutions. We thrive on your imagination and believe that nothing is impossible.
Design



